1) 低噪音
设计选用了高品质锌钢制风轮,经严格的动、静平衡调验,使空气流线型传送,减少涡轮气流摩擦噪声,机组运行平衡、宁静。
2)适用范围广
为了达到较好的空调效果,卡林风机盘管的选型应该是针对不同冷负荷,不同适用要求空调场合选用不同风量,不同焓差的机组。卡林低噪声卧式暗装风机盘管机组正是为了适用这种要求专业设计的,本系列产品中包括了2排管、3排管、直流型等品种,可满足大部分用户安装要求,创造舒适空调系统的要求。
3)多种选配件
根据不同空调系统的要求,机组可选配不锈钢或长型水盘,各式回风箱,FPT橡胶接头,水过滤器,各种功能的控制器等供用户选择,机组采用薄型设计,高度仅为235mm,可满足大部分用户现场安装的要求。
4)可靠性
卡林风机盘管宽大的一次成型凝结水盘保温层厚达7mm,彻底防止凝露;选用优质含油轴承,无需补油;亲水铝箔翅片,防腐蚀,防霉菌,减少水珠积聚,有效提高换热效率。
| 卡林风机盘管型号 | 风量 m³/h | 供冷量W | 供热量W | |||||||
| 高 | 中 | 低 | 高 | 中 | 低 | 高 | 中 | 低 | ||
| 2排管 | FP-34WA | 340 | 255 | 170 | 1968 | 1692 | 1299 | 3247 | 2793 | 2143 |
| FP-51WA | 510 | 383 | 255 | 2710 | 2385 | 1897 | 4672 | 4111 | 3270 | |
| FP-68WA | 680 | 510 | 340 | 3600 | 3060 | 2340 | 5880 | 4998 | 3822 | |
| FP-85WA | 850 | 638 | 425 | 4080 | 3509 | 2774 | 7081 | 6090 | 4815 | |
| FP-102WA | 1020 | 765 | 510 | 4800 | 4176 | 3360 | 8560 | 7447 | 5992 | |
| FP-136WA | 1360 | 1020 | 680 | 7054 | 5996 | 4656 | 9782 | 8315 | 6456 | |
| 3排管 | FP-34WA | 340 | 255 | 170 | 2350 | 2010 | 1551 | 3647 | 3137 | 2407 |
| FP-51WA | 510 | 383 | 255 | 3200 | 2816 | 2240 | 5222 | 4595 | 3655 | |
| FP-68WA | 680 | 510 | 340 | 4200 | 3570 | 2730 | 6728 | 5719 | 4373 | |
| FP-85WA | 850 | 638 | 425 | 5030 | 4326 | 3420 | 7903 | 6797 | 5374 | |
| FP-102WA | 1020 | 765 | 510 | 6020 | 5237 | 4214 | 9425 | 8200 | 6598 | |
| FP-136WA | 1360 | 1020 | 680 | 8120 | 6902 | 5359 | 12328 | 10479 | 8137 | |
| FP-170WA | 1700 | 1275 | 850 | 9400 | 8272 | 6392 | 15963 | 14047 | 10855 | |
| FP-204WA | 2040 | 1530 | 1020 | 11800 | 10148 | 7788 | 18463 | 15878 | 12185 | |
| FP-238WA | 2380 | 1785 | 1190 | 13200 | 11484 | 9240 | 20766 | 18066 | 14536 | |
| 4管制3+1排管 | FP-34WA | 340 | 255 | 170 | 2250 | 1935 | 1480 | 1850 | 1591 | 1221 |
| FP-51WA | 510 | 383 | 255 | 3100 | 2728 | 2170 | 2700 | 2376 | 1890 | |
| FP-68WA | 670 | 503 | 335 | 4000 | 3400 | 2600 | 3200 | 2720 | 2080 | |
| FP-85WA | 820 | 615 | 410 | 4850 | 4171 | 3298 | 3850 | 3311 | 2618 | |
| FP-102WA | 1010 | 758 | 505 | 6750 | 5002 | 4025 | 4700 | 4089 | 3290 | |
| FP-136WA | 1300 | 975 | 650 | 7300 | 6205 | 4818 | 6150 | 5227 | 4059 | |
| FP-170WA | 1680 | 1260 | 840 | 8700 | 7656 | 5916 | 7150 | 6292 | 4862 | |
| FP-204WA | 2000 | 1500 | 1000 | 10500 | 9030 | 6930 | 8850 | 7611 | 5841 | |
| FP-238WA | 2330 | 1748 | 1165 | 12100 | 10527 | 8470 | 10300 | 8961 | 7210 | |
| 风机 | 金属制前向多翼离心风机 | |||||||||
| 电源 | 1/N/PE AC 220V 50HZ | |||||||||
| 换热器 | 铜管穿百叶窗铝翅片 工作压力1.6Mpa | |||||||||
| 配管 | 卡林卧式暗装风机盘管冷水接管Rc3/4、盘管热水接管Rc1/2(DN15)、冷凝谁接管R3/4(DN20) | |||||||||
续表
| 卡林风机盘管型号 | 水流量kg/h | 水阻力kpa | 输入功率W | 噪声db(A) | 机组净重kg | 回风箱净重kg | ||||
| 供冷 | 供热 | 供冷 | 供热 | 交流 | 直流 | |||||
| 2排管 | FP-34WA | 338 | 338 | 16.9 | 16.9 | 36(40/48) | 21(28/32) | 36.5 | 11 | 2.2 |
| 38.5/40.5 | ||||||||||
| FP-51WA | 466 | 466 | 29.2 | 29.2 | 49(55/63) | 27(35/43) | 37.5 | 13 | 2.5 | |
| 40.5/43 | ||||||||||
| FP-68WA | 619 | 619 | 25.3 | 25.3 | 59(69/77) | 47(56/62) | 40 | 14 | 2.8 | |
| 43/44.5 | ||||||||||
| FP-85WA | 701 | 701 | 28.9 | 28.9 | 76(87/97) | 52(65/76) | 41 | 15 | 3 | |
| 44/46.5 | ||||||||||
| FP-102WA | 825 | 825 | 36.2 | 36.2 | 94(106/117) | 62(84/99) | 44 | 16 | 3.3 | |
| 46/48 | ||||||||||
| FP-136WA | 1212 | 1212 | 38.6 | 38.6 | 132(150/172) | 101(118/138) | 44.5 | 24 | 4.4 | |
| 46.5/48.5 | ||||||||||
| 3排管 | FP-34WA | 404 | 404 | 26.9 | 26.9 | 36(40/45) | 20(27/31) | 35.5 | 12 | 2.2 |
| 38/41.5 | ||||||||||
| FP-51WA | 550 | 550 | 26.8 | 26.8 | 47(55/60) | 26(34/42) | 37.5 | 14 | 2.5 | |
| 38/41.5 | ||||||||||
| FP-68WA | 722 | 722 | 21.8 | 21.8 | 55(65/75) | 45(55/61) | 39 | 15 | 2.8 | |
| 42.5/44.5 | ||||||||||
| FP-85WA | 864 | 864 | 29.9 | 29.9 | 75(82/95) | 51(63/75) | 41 | 16 | 3 | |
| 43.5/46 | ||||||||||
| FP-102WA | 1034 | 1034 | 36.4 | 36.4 | 94(107/116) | 61(83/97) | 44 | 17 | 3.3 | |
| 45.5/49 | ||||||||||
| FP-136WA | 1395 | 1395 | 29.9 | 29.9 | 128(148/165) | 99(116/136) | 44.5 | 25 | 4.4 | |
| 45.5/49 | ||||||||||
| FP-170WA | 1615 | 1615 | 39.4 | 39.4 | 150(170/200) | 115(145/175) | 46.5 | 28 | 4.5 | |
| 48/50.5 | ||||||||||
| FP-204WA | 2028 | 2028 | 40 | 40 | 188(211/245) | 155(100/221) | 48 | 31 | 5.3 | |
| 50/52 | ||||||||||
| FP-238WA | 2268 | 2268 | 42 | 42 | 225(236/280) | 182(193/255) | 50.5 | 34 | 6 | |
| 51.5/53 | ||||||||||
| 4管制3+1排管 | FP-34WA | 387 | 129 | 20 | 15 | 36(40/45) | 20(27/31) | 35.5 | 12.5 | 2.2 |
| 38/41.5 | ||||||||||
| FP-51WA | 533 | 178 | 20 | 30 | 47(55/60) | 26(34/42) | 37.5 | 14.5 | 2.5 | |
| 40/42.5 | ||||||||||
| FP-68WA | 687 | 229 | 30 | 30 | 55(65/78) | 45(55/61) | 39 | 15.5 | 2.8 | |
| 42.5/44.5 | ||||||||||
| FP-85WA | 833 | 278 | 28 | 15 | 75(82/95) | 51(63/75) | 41 | 16.5 | 3 | |
| 43.5/46 | ||||||||||
| FP-102WA | 988 | 329 | 35 | 20 | 94(107/116) | 61(83/97) | 44 | 17.5 | 3.3 | |
| 45.5/48 | ||||||||||
| FP-136WA | 1254 | 418 | 28 | 15 | 128(148/165) | 99(116/136) | 44.5 | 26 | 4.4 | |
| 45.5/49 | ||||||||||
| FP-170WA | 1495 | 498 | 35 | 20 | 150(170/200) | 115(145/175) | 46.5 | 29 | 4.5 | |
| 48/50.5 | ||||||||||
| FP-204WA | 1804 | 601 | 38 | 30 | 188(211/245) | 155(180/221) | 48 | 32 | 5.3 | |
| 50/52 | ||||||||||
| FP-238WA | 2097 | 693 | 41 | 40 | 225(236/280) | 182(193/255) | 50.5 | 35 | 6 | |
| 51.5/53 | ||||||||||
| 风机 | 金属制前向多翼离心风机 | |||||||||
| 电源 | 1/N/PE AC 220V 50HZ | |||||||||
| 换热器 | 铜管穿百叶窗铝翅片 工作压力1.6Mpa | |||||||||
| 配管 | 卡林卧式暗装风机盘管冷水接管Rc3/4、盘管热水接管Rc1/2(DN15)、冷凝谁接管R3/4(DN20) | |||||||||
备注:
1.卡林风机盘管机组噪声是在消声室,离机组出风口1米位置测定的值;
2.供冷工况测试条件:进风干球温度27℃,湿球温度19.5℃;进水温度7℃,出水温度12℃;
3.供热工况测试条件:进风干球温度21℃;
4.表中风量、供冷量、供热量等参数均基于不带回风箱机组;如带回风箱机组,相应数据需乘以修正系数(风量的修正系数为0.95,供冷量、供热量的修正系数为0.97);
5.机组左右式可现场更换,但更换后冷、热需乘以修正系数0.9-0.95。
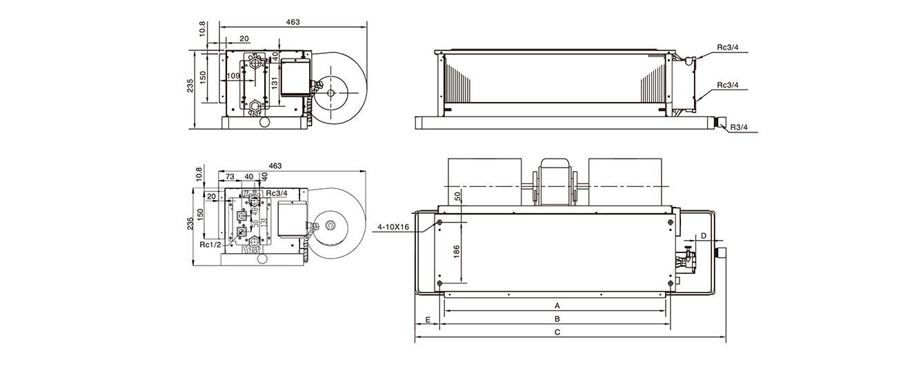
| 卡林风机盘管型号 | FP-34WA | FP-51WA | FP-68WA | FP-85WA | FP-102WA | ||
| 参数 | |||||||
| A | 445 | 575 | 675 | 725 | 835 | ||
| B | 472 | 602 | 702 | 762 | 862 | ||
| C | 标准水盘 | 678 | 808 | 908 | 968 | 1068 | |
| 加长水盘 | 928 | 1058 | 1158 | 1218 | 1318 | ||
| D | 标准水盘 | 50 | 50 | 50 | 50 | 50 | |
| 加长水盘 | 300 | 300 | 300 | 300 | 300 | ||
| E | 48 | 48 | 48 | 48 | 48 | ||
续表
| 卡林风机盘管型号 | FP-136WA | FP-170WA | FP-204WA | FP-238WA | ||
| 参数 | ||||||
| A | 1215 | 1265 | 1515 | 1755 | ||
| B | 1242 | 1292 | 1542 | 1782 | ||
| C | 标准水盘 | 1448 | 1498 | 1748 | 1988 | |
| 加长水盘 | 1698 | 1748 | 1998 | 2238 | ||
| D | 标准水盘 | 50 | 50 | 50 | 50 | |
| 加长水盘 | 300 | 300 | 300 | 300 | ||
| E | 48 | 48 | 48 | 48 | ||
相关推荐
发表评论